기독간호대입학정보
광주기독병원
HOME
|
로그인
대학안내
대학소개
총장인사말
대학정보
대학상징
캠퍼스안내
입학정보
대학입학정보
학사정보
학칙 및 학사내규
학사일정
교육과정
장학제도 안내
전공심화과정
입학안내
교육과정
운영규정
공지사항
자료실
전공심화 교수학습 공지
전공심화 과제물 제출
캠퍼스생활
공지사항
장학안내
입찰공고
학생회
도서관
선교원
대학사진갤러리
증명서 발급
국제교류
보건실
학생상담센터
커뮤니티
뉴스
대학운영 개선요청
교직원 전용
학생전용
대학교육만족도 개선
위원회 공지
혁신지원사업 성과포럼
온라인교육지원요청
[경찰청]보이스피싱예방
프로그램학습성과
대학안내
대학안내
대학소개
대학연혁
대학헌장
비전/설립이념/교육목적, 목표
발전계획/인재상
간호교육철학
간호교육목표/프로그램학습성과
교수소개
홍보동영상
총장인사말
대학정보
대학기구
대학정관
예/결산공고
대학법인
자체평가결과서
혁신지원사업계획서
대학발전기금
기부금 모금액 및 활용실적
교내연락처
업무추진비 사용내역
대학상징
대학UI
대학상징물
대학교가
나이팅게일서약문
캠퍼스안내
선교동산맵
찾아오시는 길
캠퍼스맵
대학안내
캠퍼스안내
캠퍼스맵
캠퍼스맵
8F
7F
6F
5F
4F
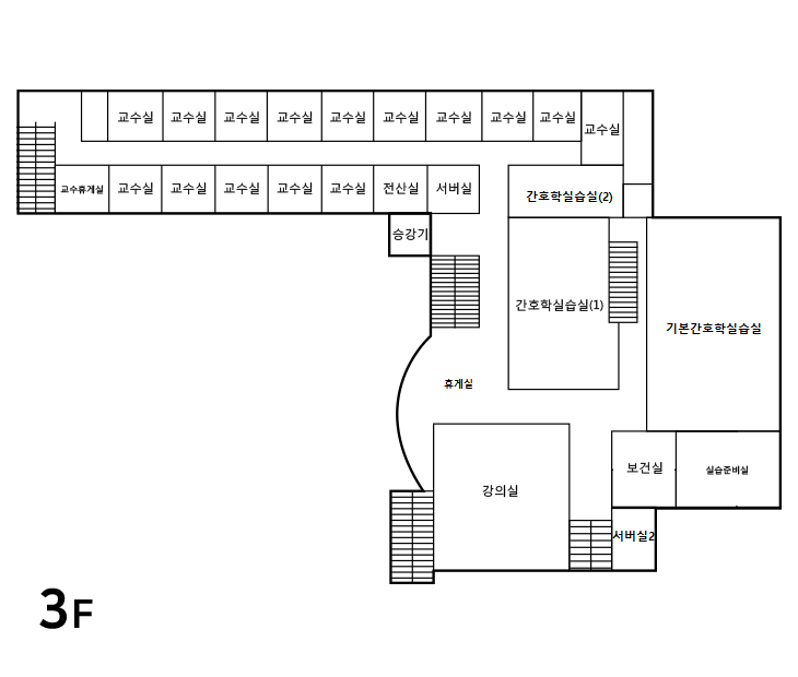
3F
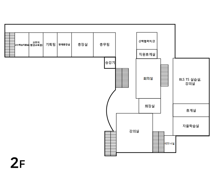
2F
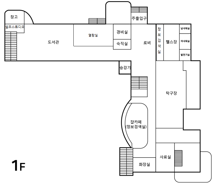
1F
주소 : 광주광역시 남구 백서로 70번길 6(양림동)
전화 : 062-650-8000 팩스 : 062-650-8098